Astoria $1,300,000
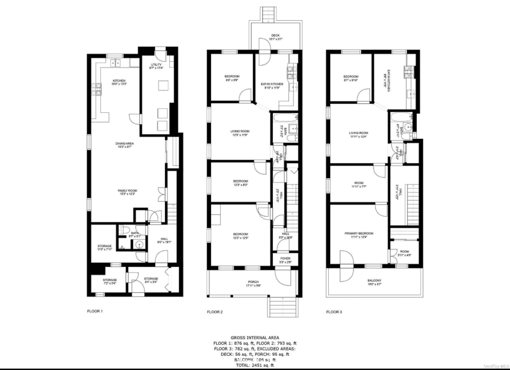
We are excited to present this large semi-detached brick two-family home for sale in Astoria! Lot size is 25×100. Building size is 20 x 46. The first and second floors consist of 3 bedrooms, 1 bathroom, large living room and an eat-in kitchen. Additional features include: a two-car garage with a storage space; spacious terrace off the 2nd floor; front porch and a small backyard. There is a front and rear entrance to a fully finished basement with a full bathroom, laundry and a wine cellar. This house is going to be DELIVERED VACANT!!! and is sold AS IS. There is a great potential for this property whether it is for an investment or a personal use.
















